Sztaplarka/desztaplarka
Sztaplarka/desztaplarka służy do sztaplowania w stos lub rozdzielania boksów/kartonów i przekazaniu ich na sąsiednie urządzenie. Urządzenie działa nad przenośnikiem rolkowym lub taśmowym, który służy do przemieszczania transportowanego materiału. Ruch pionowy odbywa się za pośrednictwem dwóch, przeciwległych mechanizmów przesuwnych lub chwytaków. Urządzenie układa w stos transportowany materiał lub zdejmuje go w odwrotnej kolejności i następnie przekazuje dalej.
• Rodzaj napędu: siłowniki pneumatyczne/motoreduktory
• Prędkość transportu: od 0,5 do 1,5 [m/s]
• Maksymalne obciążenie: 50 [kg/m]
• Temperatura pracy: 0–40 °C
• Wydajność: do 800 [pojemników/godzinę]
• Obciążenie oraz ilość elementów w stosie zależne od sposobu transportowanego materiału
• Elementy wyposażenia: siłowniki, motoreduktory, przenośnik, prowadzenia, elementy sterowania
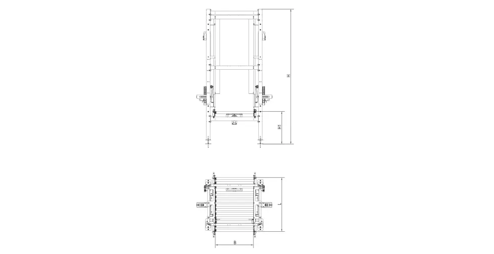
| Symbol | Definicja | Wymiar |
|---|---|---|
|
B |
Szerokość transportu |
450; 650; 850 [mm] |
|
L |
Długość przenośnika |
300–2880 [mm] |
|
Długości standardowych sekcji akumulacyjnych |
960; 1920; 2880 [mm] |
|
|
H |
Wysokość |
3000 [mm] |
|
H1 |
Wysokość transportu |
700 [mm] |
*Zmiana specyfikacji produktu na życzenie klienta możliwa po uzgodnieniu.
Sztaplarka-desztaplarka_szkic
Nasi eksperci z chęcią udzielą Ci pomocy
Sprawdź także pozostałe urządzenia
Realizujemy zamówienia na całym świecie.
Moving industries forward