Transport pionowy

Winda jednosłupowa

Winda jednosłupowa KW (1)

Informacje podstawowe

Winda służy do przenoszenia elementów pomiędzy poziomami. Główną konstrukcję windy tworzy stalowy słup. Wózek jest prowadzony przez rolki i prowadnice. Winda jest napędzana przez motoreduktor, połączony wałem z kołem pasowym zębatym. Wózek windy może być wyposażony w przenośnik rolkowy lub taśmowy.

Specyfikacja urządzenia:

• Prędkość transportu: od 0,5 do 2,0 [m/s]

• Maksymalne obciążenie: 50 [kg/m]

• Średnica rolek: 50 [mm]

• Sposób sterowania: Profinet

• Sposób przekazania napędu: pas zębaty

• Temperatura pracy: 0-40 °C

• Technika zasilania: 400 V AC

 

Parametry urządzenia:
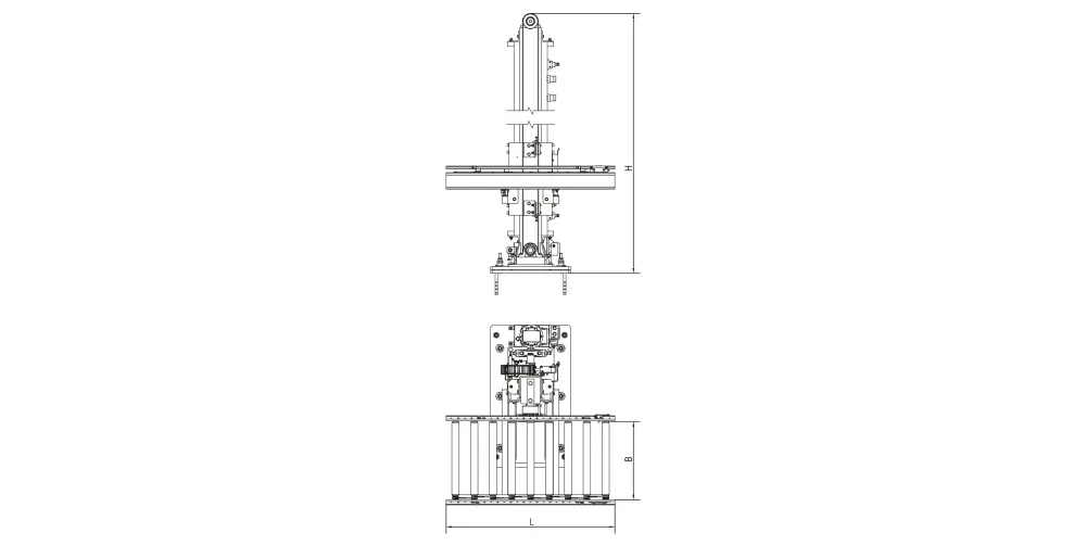
Symbol Definicja Wymiar

H

Wysokość [max]

12000 [mm]

A

Szerokość transportu

450; 650; 850 [mm]

h

Długość przenośnika

960-2880 [mm]

B

Podziałka rolek

96; 120 [mm]

L

Długość standardowych sekcji akumulacyjnych

960; 1920; 2880 [mm]

P1

Podziałka rolek

96; 120 [mm]

 

Długości standardowych sekcji akumulacyjnych

960; 1920; 2880

 

*Zmiana specyfikacji produktu na życzenie klienta możliwa po uzgodnieniu.

Rysunek techniczny
Winda jednosłupowa_szkic

Winda jednosłupowa_szkic

Masz pytanie lub potrzebujesz wsparcia eksperta?

Nasi eksperci z chęcią udzielą Ci pomocy

Strona korzysta z plików cookie w celu realizacji usług zgodnie z Polityką Prywatności. Możesz samodzielnie określić warunki przechowywania lub dostępu plików cookie w Twojej przeglądarce.