Przenośniki taśmowe skośne wznoszące i opadające
Ten typ przenośników taśmowych wykorzystywany jest do płynnego transportu produktów, o zróżnicowanych gabarytach i kształtach, miedzy różnymi poziomami. W skład urządzenia wchodzą ramy stalowe wraz z ocynkowanymi blachami podpierającymi taśmę, segment napędowy, zespół bębnów napinających oraz taśma transportowa. Przenośnik posiada aluminiowe lub opcjonalnie stalowe prowadnice zabezpieczające transportowane przedmioty przed wypadnięciem. Napęd umieszczony jest centralnie i realizowany jest przy pomocy motoreduktora bądź elektrobębna. Przenośnik wyposażony może być w płaskie segmenty w dolnej i górnej jego części oraz podwójne przełamanie w części górnej w celu zapewnienia cichego i płynnego przekazywania transportowanych przedmiotów.
.jpg)
• Prędkość transportu: zakres 0,5–2,0 [m/s]
• Maksymalne obciążenie: 50 [kg/m]
• Podparcie taśmy: stal ocynkowana
• Sposób sterowania: Profinet
• Napięcie: 400 V AC
• Napęd: motoreduktor / elektrobęben
• Przeniesienie napędu: przekładnia pasowa / bezpośrednio
• Temperatura pracy: 0–40 °C
• Elementy wyposażenia: aluminiowe prowadnice, zaślepki burt, czujniki, podpory, elementy sterowania
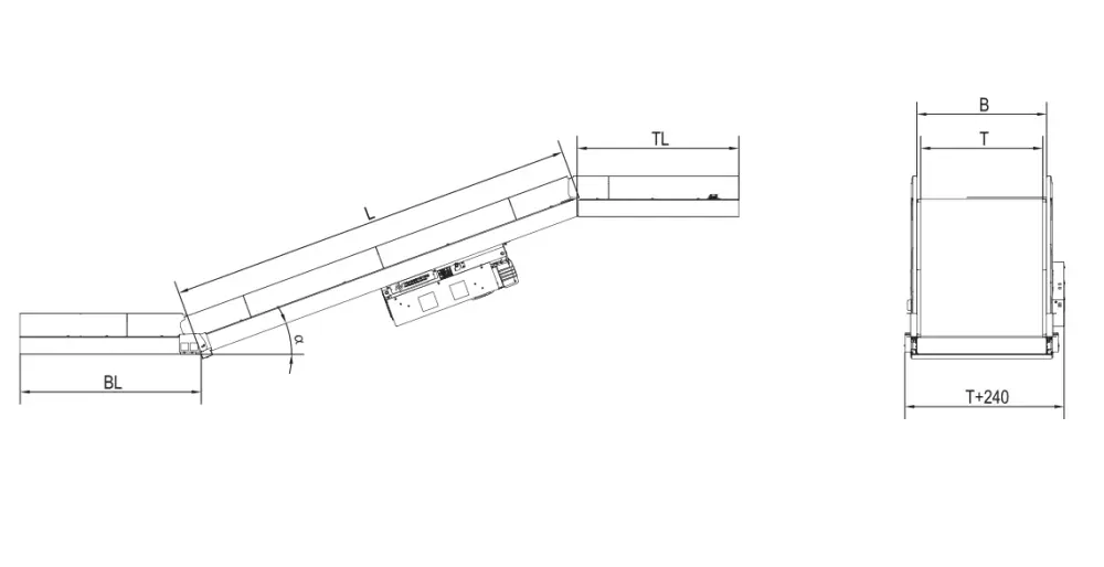
| Symbol | Definicja | Wymiar |
|---|---|---|
|
B |
Szerokość transportu |
450; 650; 850 [mm] |
|
T |
Szerokość taśmy transportowej |
400; 600; 800 [mm] |
|
L |
Długość przenośnika |
1000–20000 [mm] |
|
N |
Moc napędu |
0,37–4 kW |
|
HSG |
Wysokość prowadzenia bocznego |
50–300 [mm] |
|
BL / TL |
Długość płaskich segmentów zasilających |
600–1200 [mm] |
|
EL |
Długość podwójnego przełamania |
300–1200 [mm] |
|
α |
Kąt nachylenia |
Max 21 ° |
*Zmiana specyfikacji produktu na życzenie Klienta możliwa po uzgodnieniu.
Przenośniki taśmowe skośne wznoszące i opadające_1a
Przenośniki taśmowe skośne wznoszące i opadające_2a
Nasi eksperci z chęcią udzielą Ci pomocy
Sprawdź także pozostałe urządzenia
Realizujemy zamówienia na całym świecie.
Moving industries forward