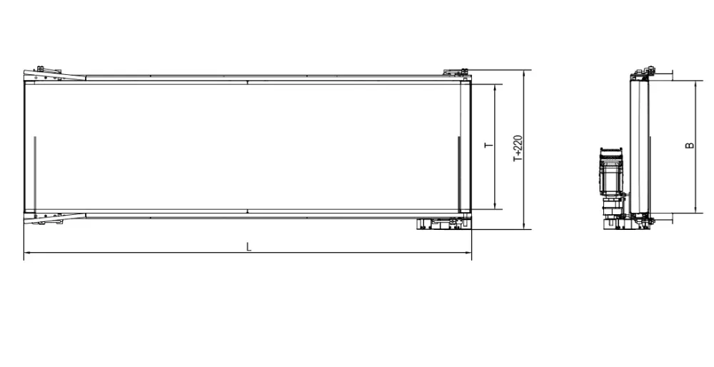
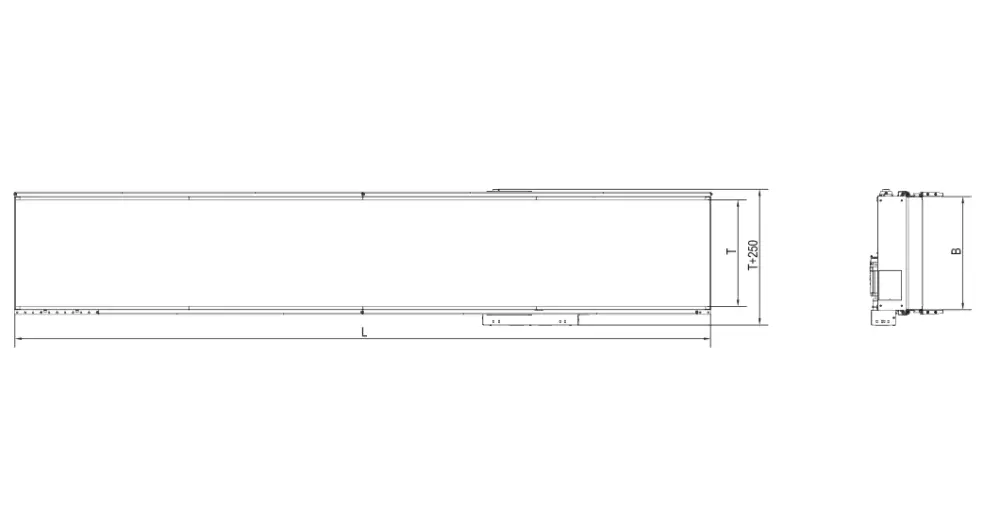
Przenośniki taśmowe płaskie
Przenośniki taśmowe wykorzystywane są do płynnego transportu produktów, o zróżnicowanych gabarytach i kształtach, na odcinkach prostych. W skład urządzenia wchodzą ramy stalowe wraz z ocynkowanymi blachami podpierającymi taśmę, segment napędowy, zespół bębnów napinających oraz taśma transportowa. Przenośnik posiada aluminiowe lub opcjonalnie stalowe prowadnice zabezpieczające transportowane przedmioty przed wypadnięciem. Napęd może być umieszczony centralnie bądź na końcu i realizowany jest z wykorzystaniem motoreduktora lub elektrobębena.
.jpg)
• Prędkość transportu: zakres 0,5–2,0 [m/s]
• Maksymalne obciążenie: 50 [kg/mb]
• Podparcie taśmy: stal ocynkowana
• Sposób sterowania: Profinet
• Napięcie: 400 V AC
• Napęd: motoreduktor / elektrobęben
• Przeniesienie napędu: przekładnia pasowa / bezpośrednio
• Temperatura pracy: 0–40 °C
• Elementy wyposażenia: aluminiowe prowadnice, zaślepki burt, czujniki, podpory, elementy sterowania
| Symbol | Definicja | Wymiar |
|---|---|---|
|
B |
Szerokość transportu |
450; 650; 850 [mm] |
|
T |
Szerokość taśmy transportowej |
400; 600; 800 [mm] |
|
L |
Długość przenośnika |
1000–20000 [mm] |
|
P |
Moc napędu |
0,37–4 kW |
|
HSG |
Wysokość prowadzenia bocznego |
50–300 [mm] |
*Zmiana specyfikacji produktu na życzenie Klienta możliwa po uzgodnieniu.
Przenośniki taśmowe płaskie_1a szkic
Przenośniki taśmowe płaskie_2a szkic
Nasi eksperci z chęcią udzielą Ci pomocy
Sprawdź także pozostałe urządzenia
Realizujemy zamówienia na całym świecie.
Moving industries forward