Moduły sortujące i sortery

Diverter Sorter

Diverter Sorter KW

Informacje podstawowe

Diverter sorter to zaawansowane rozwiązanie umożliwiające wydajne i precyzyjne sortowanie w różnych branżach. Urządzenie może obsługiwać szeroką gamę produktów, w tym paczki, listy i przedmioty o nieregularnych kształtach. Sorter zbudowany jest z wydajnych przenośników taśmowych i kaset sortujących pozwalających na kierowanie artykułów bezpośrednio do docelowych zsypów bez konieczności zatrzymywania linii. Modułowa konstrukcja sortera zapewnia skalowalność i dostosowanie do konkretnych potrzeb operacyjnych, dzięki czemu nadaje się do obiektów każdej wielkości. Inteligentny system sterowania zapewnia płynną pracę przy minimalnych przestojach, maksymalizując w ten sposób produktywność i przepustowość. Solidna konstrukcja i niezawodne działanie sortownika sprawiają, że jest to pewne rozwiązanie usprawniające procesy sortowania i optymalizujące operacje logistyczne.


Szczegółowych informacji na temat budowy i działania sortera typu diverter udzieli Państwu Dział Intralogistyki firmy Transsystem SA – zapraszamy do kontaktu.

Specyfikacja urządzenia:

• Prędkość transportu: 0,5–1,5 [m/s]

• Maksymalne obciążenie: 30 [kg]

• Napięcia zasilania: 24 V DC/400 V AC

• Temperatura pracy: 0–40 °C

• Wydajność: 4000 [pcs/h]

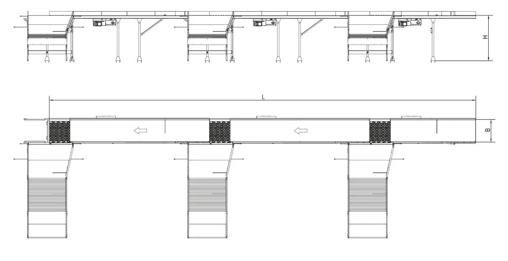
Parametry urządzenia:
Symbol Definicja Wymiar

B

Szerokość transportu

400; 500; 600; 700; 800 [mm]

L

Długość

W zależności od ilości zastosowanych modułów 

H

Wysokość

Od 400 [mm]

 

*Zmiana specyfikacji produktu na życzenie klienta możliwa po uzgodnieniu.

Rysunek techniczny
Diverter Sorter_szkice

Diverter Sorter_szkice

Masz pytanie lub potrzebujesz wsparcia eksperta?

Nasi eksperci z chęcią udzielą Ci pomocy

Strona korzysta z plików cookie w celu realizacji usług zgodnie z Polityką Prywatności. Możesz samodzielnie określić warunki przechowywania lub dostępu plików cookie w Twojej przeglądarce.