Stacker/destacker palet
Stacker służy do automatycznego tworzenia stosów z pojedynczych palet, co umożliwia ich łatwiejsze przechowywanie lub przekazywanie na sąsiednie urządzenie. Destacker rozdziela stos palet na pojedyncze jednostki, które mogą być dalej używane w procesach produkcyjnych lub logistycznych. Urządzenia działają nad przenośnikiem łańcuchowym, który służy do przemieszczania palet. Ruch pionowy odbywa się przy pomocy dwóch, przeciwległych wózków wprawianych w ruch za pomocą siłowników pneumatycznych. Przejęcie palety jest możliwe dzięki czterem siłownikom zamontowanych poziomo, za pomocą których można wprawić w ruch chwytaki. Siłowniki współpracują z systemami sterowania. Na urządzeniu montowane są osłony oraz odboje zapobiegające spadaniu palet.
• Maksymalne obciążenie: 350 [kg]
• Rodzaj napędu: siłowniki pneumatyczne
• Temperatura pracy: 0–40 °C
• Maksymalna ilość palet: 12
• Elementy wyposażenia: siłowniki, prowadzenia, łapki, rama podpierająca, elementy sterowania
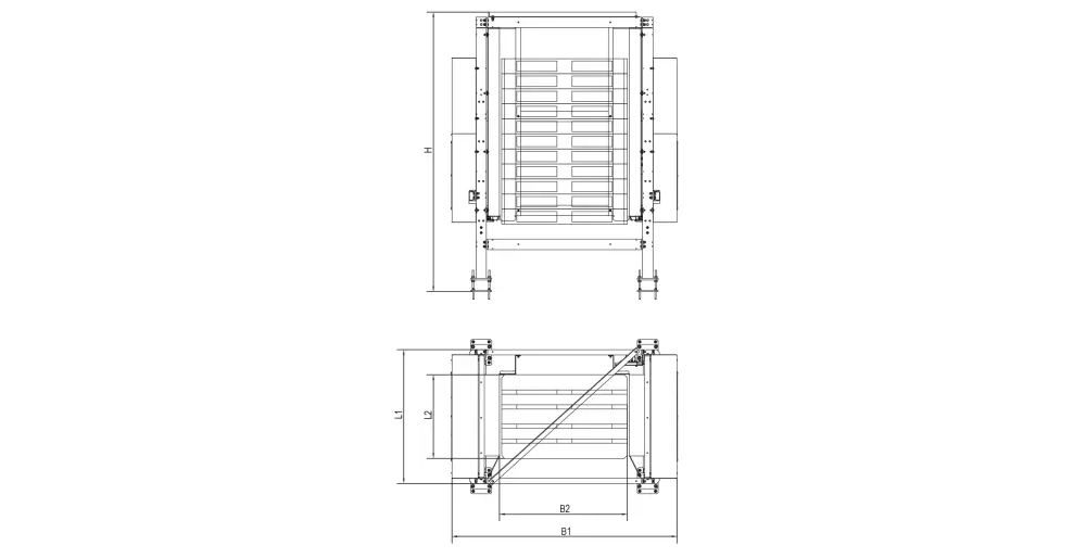
| Symbol | Definicja | Wymiar |
|---|---|---|
|
B1 |
Szerokość |
1500; 2000 [mm] |
|
B2 |
Szerokość transportu |
850; 1250 [mm] |
|
L1 |
Długość |
1300; 1700 [mm] |
|
L2 |
Długość transportu |
850; 1250 [mm] |
|
H |
Wysokość |
2700 [mm] |
*Zmiana specyfikacji produktu na życzenie klienta możliwa po uzgodnieniu.
Stacker-destacker palet_szkic
Nasi eksperci z chęcią udzielą Ci pomocy
Sprawdź także pozostałe urządzenia
Realizujemy zamówienia na całym świecie.
Moving industries forward